top of page

Jacará
James Street, Woody Point, Qld 4019 | In Progress
Jacará is an upcoming two-level boutique townhouse development to be constructed by Menere in Scarborough. The project will consist of six architecturally designed townhomes, with a combined internal floor area exceeding 1,300m².
Designed with premium coastal living in mind, Jacara will feature high ceilings, expansive open-plan layouts, and high-end material selections, including feature cladding and natural stone finishes.
With construction commencing in late 2025, Menere will manage the full delivery of the build, drawing on our proven team, systems, and subcontractor network to ensure a seamless and high-quality result

Photo Gallery
Project Renders

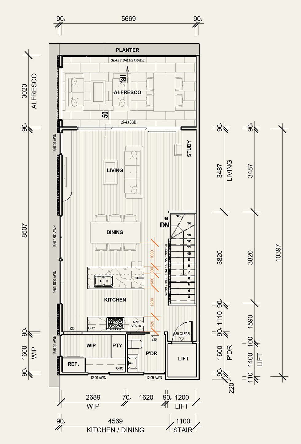
Floor plan




bottom of page







